«Գրանցված է»
ՀՀ արդարադատության
նախարարության կողմից
27 հուլիսի 2005 թ.
Պետական գրանցման թիվ 32205294
ՀԱՅԱՍՏԱՆԻ ՀԱՆՐԱՊԵՏՈՒԹՅԱՆ
ԿԱՌԱՎԱՐՈՒԹՅԱՆՆ ԱՌԸՆԹԵՐ ԱՆՇԱՐԺ ԳՈՒՅՔԻ ԿԱԴԱՍՏՐԻ ՊԵՏԱԿԱՆ ԿՈՄԻՏԵ
|
19 հուլիսի 2005 թ. |
N 207-Ն |
Հ Ր Ա Մ Ա Ն
ԻՆՔՆԱԿԱՄ ԿԱՌՈՒՑՎԱԾ ՇԵՆՔԵՐԻ, ՇԻՆՈՒԹՅՈՒՆՆԵՐԻ ԵՎ ԻՆՔՆԱԿԱՄ ԶԲԱՂԵՑՎԱԾ ՀՈՂԱՄԱՍԵՐԻ ԱՌԿԱՅՈՒԹՅԱՄԲ ԳՈՒՅՔԻ ՆԿԱՏՄԱՄԲ ԻՐԱՎՈՒՆՔՆԵՐԻ ՊԵՏԱԿԱՆ ԳՐԱՆՑՄԱՆ ՀՐԱՀԱՆԳԸ ՀԱՍՏԱՏԵԼՈՒ ՄԱՍԻՆ
Հիմք ընդունելով Հայաստանի Հանրապետության կառավարության 2005 թվականի ապրիլի 7-ի «Ինքնակամ կառուցված շենքերի, շինությունների և ինքնակամ զբաղեցված հողամասերի առկայության դեպքում գույքի նկատմամբ իրավունքների պետական գրանցման մասին» N 719-Ն որոշման պահանջները
ՀՐԱՄԱՅՈՒՄ ԵՄ`
1. Հաստատել` «Ինքնակամ կառուցված շենքերի, շինությունների և ինքնակամ զբաղեցված հողամասերի առկայությամբ գույքի նկատմամբ իրավունքների պետական գրանցման հրահանգը» համաձայն` հավելվածի:
2. Սույն հրամանը սահմանված կարգով ներկայացնել Հայաստանի Հանրապետության արդարադատության նախարարություն` պետական գրանցման:
3. Սույն հրամանի կատարման հսկողությունը դնել Հայաստանի Հանրապետության կառավարությանն առընթեր անշարժ գույքի կադաստրի պետական կոմիտեի նախագահի տեղակալ Ա. Մուսայանի վրա:
|
Կոմիտեի նախագահ` |
Մ. Վարդանյան |
|
Հավելված | |
|
Հաստատված է` |
Հ Ր Ա Հ Ա Ն Գ
ԻՆՔՆԱԿԱՄ ԿԱՌՈՒՑՎԱԾ ՇԵՆՔԵՐԻ, ՇԻՆՈՒԹՅՈՒՆՆԵՐԻ ԵՎ ԻՆՔՆԱԿԱՄ ԶԲԱՂԵՑՎԱԾ ՀՈՂԱՄԱՍԵՐԻ ԱՌԿԱՅՈՒԹՅԱՄԲ ԳՈՒՅՔԻ ՆԿԱՏՄԱՄԲ ԻՐԱՎՈՒՆՔՆԵՐԻ ՊԵՏԱԿԱՆ ԳՐԱՆՑՄԱՆ
1. Սույն հրահանգով սահմանվում են ինքնակամ կառուցված շենքերի, շինությունների կամ դրանց մասերի և ինքնակամ զբաղեցված հողամասերի առկայությամբ գույքի նկատմամբ իրավունքների պետական գրանցման առանձնահատկությունները:
2. Պետական գրանցման ենթակա չեն ամբողջությամբ ինքնակամ զբաղեցված հողամասերը և դրանց վրա ինքնակամ կառուցված շենքերը, շինությունները, ինչպես նաև քաղաքային բնակավայրերում սեփականության իրավունքով պատկանող այն հողամասերը, որոնց կից առկա են ինքնակամ զբաղեցված հողամասեր և (կամ) ինքնակամ զբաղեցված հողամասում ինքնակամ կառուցված շենքեր, շինություններ, որոնց հետագա կարգավիճակը որոշվում է Հայաստանի Հանրապետության քաղաքացիական և հողային օրենսգրքով սահմանված կարգով:
3. Ինքնակամ կառուցված շենքերի, շինությունների կամ դրանց մասերի և ինքնակամ զբաղեցված հողամասերի առկայությամբ գույքի նկատմամբ իրավունքների պետական գրանցումն իրականացվում է միայն այն անձի դիմումով, որին սեփականության իրավունքով պատկանող հողամասում կամ որին սեփականության իրավունքով պատկանող շենքերում, շինություններում կամ դրանց կից կառուցված են այդ կառույցները:
4. Հայաստանի Հանրապետության կառավարությանն առընթեր անշարժ գույքի կադաստրի պետական կոմիտեի աշխատակազմի` ըստ գույքի գտնվելու վայրի, տարածքային ստորաբաժանումները ստանալով դիմում և կից փաստաթղթերը, ուսումնասիրում են գործում առկա նյութերը և սահմանված կարգով կազմում ուրվագիծ, որի հիման վրա համեմատվում է գույքի փաստացի վիճակը կադաստրային գործում առկա և (կամ) դիմումով ներկայացված փաստաթղթերի տվյալների հետ:
Ուրվագծի եզրակացություն բաժնում պարտադիր կատարվում են գրառումներ` անշարժ գույքի որակական, քանակական տվյալների փոփոխության կամ համապատասխանության վերաբերյալ` նշելով եզրակացության ամսաթիվը, ամիսը, տարեթիվը:
Ուրվագծի հիման վրա` սահմանված կարգով, համապատասխան գրանցման վկայականում գծագրվում է գույքի հատակագիծը, հետևյալ կերպ`
ա) օրենքով սահմանված կարգով հատկացված կամ ձեռք բերված, ինչպես նաև սեփականության իրավունքով պատկանող հողամասին կից` ինքնակամ զբաղեցված, սակայն չկառուցապատված հողամասերի առկայության դեպքում վկայականի (Ձև թիվ 1) «ՀՈՂԱՄԱՍԻ ՀԱՏԱԿԱԳԻԾԸ» բաժնում օրինական հողամասի հետ միասին գծագրվում է կից ինքնակամ զբաղեցված հողամասը(երը): Ինքնակամ զբաղեցված հողամասը(երը) կարմիր գույնով նշագծվում (շտրիխապատվում) և սահմանազատվում է օրինական հողամասից` նշելով օրինական հողամասի և ինքնակամ զբաղեցված հողամասի արտաքին չափերը առանձին-առանձին:
Գրանցման վկայականում օրինական և ինքնակամ զբաղեցված հողամասերի վրա դրվում են ծածկագրեր (կոդ), (այսուհետ` ծածկագիր) քարտեզից, որը կունենա հետևյալ տեսքը (օրինական հողամաս 001, ինքնակամ զբաղեցված հողամաս 001-1):
Վկայականի մյուս բաժիններում լրացվում են օրինական գույքի նկատմամբ իրավունքների վերաբերյալ տվյալները, իսկ վկայականի «Լրացուցիչ նշումներ, փոփոխություններ» բաժինը լրացվում է ինքնակամ զբաղեցված հողամասի «ՀՈՂԱՄԱՍԻ ՀԱՏԱԿԱԳԻԾԸ» բաժնում նշված ծածկագիրը (կոդ) կամ հերթական համարը, դրա մակերեսը և նշվում «ինքնակամ զբաղեցված հողամաս» բառակապակցությունը,
բ) Օրենքով սահմանված կարգով հատկացված, ձեռք բերված, ինչպես նաև սեփականության իրավունքով պատկանող հողամասին(երին) կից ինքնակամ զբաղեցված կառուցապատ հողամասի(երի) (ինչպես նաև դրանց վրա ինքնակամ կառուցված շենքերի, շինությունների, որոնց մի մասը կառուցված է օրինական հողամասի, իսկ մյուս մասը կարգավիճակը չորոշված հողամասի վրա) առկայության դեպքում վկայականի (Ձև թիվ 2) «ՀՈՂԱՄԱՍԻ ՀԱՏԱԿԱԳԻԾԸ» բաժնում օրինական հողամասի հետ միասին գծագրվում է ինքնակամ զբաղեցված հողամասը և դրանց վրա ինքնակամ կառուցված շենքերը, շինությունները` կարմիր գույնով նշագծվում (շտրիխապատվում) և սահմանազատվում են օրինական հողամասից և շենքերից, շինություններից, ծածկագրվում կամ համարակալվում են օրինական հողամասը և ինքնակամ զբաղեցված հողամասը հերթական ծածկագրով կամ համարներով` նշելով օրինական հողամասի և ինքնակամ զբաղեցված հողամասի արտաքին չափերը առանձին-առանձին:
Վկայականի «ՇԵՆՔԻ ՀԱՏԱԿԱԳԻԾԸ» բաժնում գծագրվում են և ինքնակամ կառուցված և օրինական շենքերը, դրանք ծածկագրվում կամ համարակալվում են հերթական համարներով, նշելով դրանց մակերեսը, իսկ ինքնակամ շենքերը կարմիր գույնով նշագծվում (շտրիխապատվում) են:
Վկայականի մյուս բաժիններում լրացվում են օրինական գույքի նկատմամբ իրավունքների վերաբերյալ տվյալները, իսկ վկայականի «Լրացուցիչ նշումներ, փոփոխություններ» բաժնում լրացվում է ինքնակամ զբաղեցված հողամասի «ՀՈՂԱՄԱՍԻ ՀԱՏԱԿԱԳԻԾԸ» բաժնում նշված ծածկագիրը կամ հերթական համարը, դրա չափը և նշվում «ինքնակամ զբաղեցված հողամաս» և «ՇԵՆՔԻ ՀԱՏԱԿԱԳԻԾԸ» բաժնում նշված ինքնակամ կառուցված շենքի(երի) ծածկագիրը կամ հերթական համարը(ները), դրա մակերեսը(ները)` շինությունների առկայության դեպքում ծածկագիրը կամ հերթական համարը(ները), դրանց մակերեսների հանրագումարը և նշվում «ինքնակամ կառույց» բառակապակցությունը,
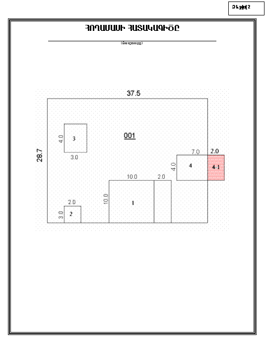
գ) Օրենքով սահմանված կարգով հատկացված, ձեռք բերված, ինչպես նաև սեփականության իրավունքով պատկանող հողամասում(երում) ինքնակամ կառուցված շենքերի, շինությունների առկայության դեպքում վկայականի (Ձև թիվ 3) «ՇԵՆՔԻ ՀԱՏԱԿԱԳԻԾԸ» և(կամ) «ՀՈՂԱՄԱՍԻ ՀԱՏԱԿԱԳԻԾԸ» բաժիններում գծագրվում են և ինքնակամ կցակառույցը, շենքերը, շինությունները և օրինական գույքը` դրանք համարակալելով ծածկագրերով կամ հերթական համարներով, նշելով դրանց մակերեսը, իսկ ինքնակամ կցակառույցները, շենքերը, շինությունները կարմիր գույնով նշագծվում (շտրիխապատվում) են:
Վկայականի մյուս բաժիններում լրացվում են օրինական գույքի նկատմամբ իրավունքների վերաբերյալ տվյալները, իսկ վկայականի «Լրացուցիչ նշումներ, փոփոխություններ» բաժնում լրացվում է «ՇԵՆՔԻ ՀԱՏԱԿԱԳԻԾԸ» և(կամ) «ՀՈՂԱՄԱՍԻ ՀԱՏԱԿԱԳԻԾԸ» բաժիններում նշված ինքնակամ կցակառույցի, շենքերի, շինությունների ծածկագիրը(երը) կամ հերթական համարը(ները), դրանց մակերեսների հանրագումարը և նշվում «ինքնակամ շինություն» բառակապակցությունը:
Համատեղ սեփականության իրավունքով պատկանող հողամասում(երում) օրենքով սահմանված կարգով օրինականացման համար հիմք հանդիսացող փաստաթղթերի (հողամասի համատեղ սեփականատիրոջ(երի) համաձայնագիր, կառուցման տարեթիվ և այլն) բացակայության դեպքում, ինքնակամ կառուցված շենքերի, շինությունների առկայությամբ օրինական գույքի համար համապատասխան վկայականների կազմումն ու դրանց նկատմամբ իրավունքների պետական գրանցումն իրականացվում է սույն կետով սահմանված կարգով,
դ) օրինական կառույցների ծավալում գտնվող, կամ դրանց կից ինքնակամ կառուցված կցակառույցների, նշված տարածքներում ինքնակամ կառուցված մանսարդների, վերնասրահների, ձեղնահարկերի, նկուղների և այլ կառույցների, ինչպես նաև շենքի, շինության արտաքին պատերին և շենքի, շինության կրող կոնստրուկցիաներում ինքնակամ ձևափոխված և(կամ) բացված դռների, պատուհանների և այլ ձևափոխությունների առկայության դեպքում վկայականի (Ձև թիվ 4) «ՇԵՆՔԻ ՀԱՏԱԿԱԳԻԾԸ» բաժնում գծագրվում են և ինքնակամ կառույցը կամ այլ ձևափոխությունները, և օրինական գույքը` դրանք համարակալելով ծածկագրերով կամ հերթական համարներով, նշելով դրանց մակերեսը, իսկ ինքնակամ կառույցները, կարմիր գույնով նշագծվում (շտրիխապատվում) են:
Վկայականի մյուս բաժիններում լրացվում են օրինական գույքի նկատմամբ իրավունքների վերաբերյալ տվյալները, իսկ վկայականի «Լրացուցիչ նշումներ, փոփոխություններ» բաժնում լրացվում է «ՇԵՆՔԻ ՀԱՏԱԿԱԳԻԾԸ» բաժնում նշված ինքնակամ կառույցի ծածկագիրը(երը) կամ հերթական համարը(ները), դրա մակերեսը(ները) և նշվում «ինքնակամ շինություն» բառակապակցությունը:
5. Սույն հրահանգի 3-րդ կետով սահմանված`
ա) օրինական հողամասերում ինքնակամ կառուցված շենքերի, շինությունների, ինչպես նաև հողամասերին կից ինքնակամ զբաղեցված հողամասերի, բնակելի, հասարակական կամ արտադրական նշանակության շինություններին կից ինքնակամ կառուցված շինությունների առկայության դեպքում անձանց սեփականության իրավունքով պատկանող օրինական շենքերի, շինությունների, հողամասերի համար սահմանված կարգով իրականացվում է իրավունքների պետական գրանցում` «Գույքի նկատմամբ իրավունքների պետական գրանցման միասնական մատյան»-ների` «Գրանցման թերթիկ»-ների բոլոր բաժինները լրացվում են օրինական գույքի վերաբերյալ տվյալներով, իսկ «Գրանցման թերթիկ»-ների «Լրացուցիչ տեղեկություններ» բաժինը լրացվում է ինքնակամ կառուցված շենքերի, շինությունների, ինչպես նաև հողամասերին կից ինքնակամ զբաղեցված հողամասերի, բնակելի, հասարակական կամ արտադրական նշանակության շինություններին կից ինքնակամ կառուցված շինությունների` ըստ գույքի տեսակի, ծածկագիրը(երը) կամ հերթական համարը(ները), մակերեսը(երը) և «ինքնակամ կառույց» բառակապակցությունը,
բ) սույն կետով սահմանված` ինքնակամ կառուցված շենքերի, շինությունների, ինքնակամ զբաղեցված հողամասերի վերաբերյալ տվյալները` Հայաստանի Հանրապետության կառավարության 2000 թվականի հուլիսի 27-ի «Ինքնակամ կառուցված շենքերը, շինությունները, ինքնակամ զբաղեցված հողամասերը, տիրազուրկ (լքված) անշարժ գույքը հաշվառելու մասին» N 422 որոշմամբ հաստատված կարգով` գրանցվում են նաև ինքնակամ կառուցված շենքերի, շինությունների, ինքնակամ զբաղեցված հողամասերի հաշվառման համար նախատեսված մատյաններում, և սահմանված կարգով տեղեկացվում է համայնքի ղեկավարին (Երևան քաղաքում` Երևանի քաղաքապետին), համայնքի վարչական սահմաններից դուրս` համապատասխան մարզպետին:
6. Պետական կամ համայնքային սեփականություն հանդիսացող` օգտագործման իրավունքով տրամադրված հողամասերի վրա (բացառությամբ քաղաքային բնակավայրերի) ինքնակամ կառուցված շենքերի, շինությունների կամ դրանց մասերի և ինքնակամ զբաղեցված հողամասերի առկայությամբ, օրինական գույքի համար համապատասխան վկայականների կազմումն ու դրանց նկատմամբ իրավունքների պետական գրանցումն իրականացվում է սույն կարգի 2-րդ և 3-րդ կետերով սահմանված կարգով:
7. Անշարժ գույքի նկատմամբ գրանցված իրավունքների վերաբերյալ տեղեկատվության տրամադրումը իրականացվում է օրենսդրությամբ սահմանված կարգով, ընդ որում, այն տրամադրվում է ոչ միայն գույքի օրինական, այլ նաև ինքնակամ զբաղեցված հողամասերի և(կամ) ինքնակամ կառուցված շենքերի, շինությունների մասով` նշելով դրանց ծածկագիրը(երը) կամ հերթական համարը(ները), մակերեսը(ները) և «ինքնակամ շինություն», իսկ ինքնակամ զբաղեցված հողամասերի դեպքում դրա ծածկագիրը(երը) կամ հերթական համարը(ները), մակերեսը(ները) և «ինքնակամ զբաղեցված հողամաս» բառակապակցությունները:
Սույն մասով սահմանված` տեղեկատվության տրամադրման նպատակով իրականացված անշարժ գույքի տեղազննության ժամանակ, եթե պարզվում է, որ առկա է ինքնակամ զբաղեցված հողամաս և (կամ) ինքնակամ կառույց և վերջիններս սույն հրահանգով սահմանված կարգով դեռևս հաշվառված չեն, ապա սահմանված կարգով տրամադրվում է տեղեկատվություն, ինչպես օրինական գույքի, այնպես էլ ինքնակամ զբաղեցված հողամասերի և(կամ) ինքնակամ կառույցների վերաբերյալ` դրանք բնութագրող պարտադիր նշումներով:
8. Սույն հրահանգով սահմանված նշագծումները (շտրիխապատումները) կատարվում են.
ա) «ՀՈՂԱՄԱՍԻ ՀԱՏԱԿԱԳԻԾԸ» բաժնում` ինքնակամ շենքերը, շինությունները հորիզոնական, իսկ հողամասերը` շեղ,
բ) «ՇԵՆՔԻ ՀԱՏԱԿԱԳԻԾԸ» բաժնում` ինքնակամ շենքերը, շինությունները և սույն հրահանգով սահմանված այլ կառույցները շեղ: